Header Ads

"20x38 West-Facing 3BHK with Ground Floor Shop | G+1 House Plan & Design"

 20'x38' West Facing 3BHK with Ground Floor Front Shop (G+1) Floor Plan -Detailed Guide

West-facing Vastu house plan

Introduction:-

20'x38' West Facing 3BHK with Ground Floor Front Shop (G+1) Floor Plan -760 Sq/Ft Floor Plan

A 20'x38' west-facing G+1 floor plan with a 3BHK residence and front on the ground floors is an ideal design for urban and semiurban areas.This layout efficiently balances commercial and residential needs, maximizing space utilization, privacy, and functionality. With a total plot area of ​​760 sq/ft, this design caters to homeowners seeking a compact yet profitable space that integrates buisness opportunities with comfortable living.

20x38 house plan


This layout ensures optimal space utilization, and functional zoning for both residential and commercial purposes. Floor plan is perfect for entrepreneurs, small business owners, and families looking for modern, efficient, and Vastu-compliant home. whether for self-use or rental investment, This layout provides maximum benefits in a compact footprints.

Ground Floor Plan (Commercial + Residential)

In which shop has been provided in the front. Basic information related to the shop is included which is as follows.

Front Shop (Commercial Spaces)

Shop Size :- Approx 7x 8 ft i.e. 56 sq/ft

Large Glass frontage for visibility and access.

Dedicated entry door for shop customers.

Attached storage for small office space.

Ideal for retail, office, or rental business.

3BHK house design with shop

Residential Area :-

1BHK plan in ground floor and staircase in front has been designed. Whose details are as follows.

Porch is given in small size which is sufficient for two wheeler 8'0"x9'0" with front ventilation.

Living Room :- Spacious 11'0"x10'6" with front ventilation.

Kitchen :- 9'0"x9'8" with proper storage & counter space.

Bedroom-1 :- 9'4"x12'0" with an attached toilet.

Attach Bathroom :-4'6"x7'2" with an connected Common toilet.

Common Bathroom :- 7'0"x3'6" below the staircase.

Wash Area :- 9'0"x4'4" with an attached kitchen

Staircase Placement :- Internal stairs for G+1 connectivity

Pooja Area :- Connected to the wall.

There is a 2'6" wide verandah in the front.

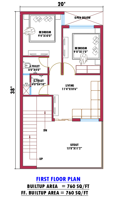
First Floor Plan (Full Residential- 2BH)

2BH plan in First floor and staircase in front has been designed. Whose details are as follows.

Master Bedroom :- 9'4"x10'0" with an attached toilet.

Attach Bathroom :-6'0"x4'0" with an connected bedroom.

Bedroom-2 :- 9'0"x11'0" suitable for guest/kids.

Living Room :- Spacious 11'4"x10'6" with front ventilation.

Sitout/Balcony :- 15'8"x11'2" with enhancing ventilation & natural lights.

Common Bathroom :- 4'0"x4'10" with an connected living.

Staircase Placement :- Internal stairs for G+1 connectivity.

Best 20x38 home layout


Key Features of this Floor Plan:-

* Efficient space Utilization :- Seamless balance between commercial & residential spaces.

* Separate Entry for Residential & Shop :- Ensures privacy & convenience.

* Natural Lighting & ventilation :- Well-planned windows & balconies.

* Commercial Income opportunity:- Ideal For rental shop or personal business.

* West-Facing Vastu Benefits :- Supports prosperity & success.

Conclusion :-

This floor plan 20'0"x38'0" west-facing G+1 plan offers the perfect blend of business & home living in a compact layout. Whether you are an investor, entrepreneur, or homeowner, this design ensures maximum space efficiency, privacy and financial benefits.


Would you like a 2D or 3D floor plan image for better visualization? 


REFERENCE TO THE ARTICLE :-

2bhk house plan east facing

20x40 1 bedroom house plans

No comments

Powered by Blogger.